Thiết kế nhà 3 tầng 5x20m cho gia đình nhiều người. Gia đình gồm 5 thành viên, cần bố trí 4 phòng ngủ: một cho bà, một cho vợ chồng, 2 phòng ngủ cho con trai và con gái (đang là sinh viên đại học). Nhà vệ sinh cần bố trí riêng có phòng tắm đứng cho mỗi phòng. Phòng khách cần rộng, thoáng vì chúng tôi thường xuyên có nhu cầu tổ chức tiệc với bạn bè. Hệ cầu thang được thiết kế mới lạ, hiện đại và tạo được điểm nhấn. Vợ chồng tôi có nhu cầu làm một spa gia đình nhằm thư giãn và một phòng thờ tại khu vực sân thượng.
Phác họa phối cảnh 3D sau

Phối cảnh 3D phòng khách: Phòng khách với tông màu xám nhạt cùng cầu thang kính tạo cảm giác rộng rãi khoáng đạt và xuyên suốt cho ngôi nhà. Tiểu cảnh trang trí dưới chân cầu thang mang lại mảng xanh cho không gian.

Phòng bếp: Không gian bếp với tông màu trắng xanh cùng chất liệu acrylic bóng mang lại cảm giác thanh thoát, dịu nhẹ. Đèn trần dùng nhiều loại khác nhau giúp điều tiết ánh sáng vừa phải, giúp không gian không quá chói lòa bởi tông màu sáng.

Phòng ngủ cho vợ chồng: Phòng ngủ master không cầu kỳ nhưng vẫn có điểm nhấn với phong cách riêng. Thiết kế không nặng trong cách bày trí vật dụng, chủ yếu dùng giấy dán tường trang nhã, tranh treo họa tiết đơn giản nhưng hiện đại và tạo được điểm nhấn.

Phòng tắm vách ngăn kính hiện đại, tạo cảm giác mở rộng về mặt thị giác. Chất liệu gỗ phù hợp với tông màu nhã nhặn của tổng thể kiến trúc.

Phòng ngủ của bà: Phòng ngủ của bà với tông màu trầm ấm tạo cảm giác thoải mái dễ chịu. Phòng vệ sinh bên trong với vách ngăn kính tạo cảm giác rộng rãi hơn cho không gian.

Hệ tủ kệ trong phòng ngủ đơn giản xuyên suốt, vách phòng tích hợp công năng kệ TV, để vật dụng và đồ trang trí, vừa tiện lợi vừa ấn tượng. Khung cửa sổ lớn tận dụng ánh sáng tự nhiên đem đến sự thông thoáng với hệ rèm nhằm điều tiết ánh sáng vào các thởi điểm khách nhau trong ngày.

Phòng ngủ cho con trai: Phòng ngủ cho con trai với tông màu trung tính điểm một chút màu xanh hiện đại và trẻ trung. Sử dụng giấy dán tường với họa tiết cách điệu đem đến vẻ cá tính mạnh mẽ cho không gian. Đèn chiếu sáng cách điệu mang lại cảm giác ấm cúng.

Khu wc đơn giản, hiện đại: Phòng vệ sinh với vách ngăn kính nhìn ra ngoài tạo cảm giác mở rộng về thị giác giúp không gian khoáng đạt.

Phòng ngủ cho con gái: Phòng ngủ con gái với tông màu hồng nữ tính dịu nhẹ phù hợp với tính cách. Nhà vệ sinh với vách ngăn kính tạo cảm giác rộng rãi. Hệ tủ kệ đơn giản xuyên suốt. Vách phòng ngủ tích hợp công năng của bàn làm việc, kệ TV, kệ để vật dụng và đồ trang trí, vừa tiện lợi vừa ấn tượng.

Spa gia đình: Không gian phòng spa bố trí trên sân thượng với chất liệu gỗ đem lại cảm giác dễ chịu, ấm áp trong những giây phút thư giãn thoải mái.

Một góc không gian sân thượng: Bồn tắm nằm được bố trí ngay giữa phòng. Khi thư giãn ở đây, chủ nhân có thể nhìn ra vách ngăn kính, phía sau là sân vườn xanh hiền hòa.

Bố trí mặt bằng tầng một: Bản vẽ thiết kế nhà phố 5x20 Khoảng sân trước và sân sau được chừa theo đúng quy định. Phòng khách rộng rãi, thoải mái, dưới chân cầu thang có thể bố trí tiểu cảnh vườn để trang trí làm đẹp không gian. Kế tiếp là hệ cầu thang hình bình hành, tạo sự sinh động với nhiều góc nhìn đẹp hơn cho không gian lệch tầng. Phòng khách, bếp ăn liên thông, sau khu vực bếp ăn là khu vườn nhỏ đem lại mảng xanh sinh động cho không gian.

Bố trí mặt bằng tầng 2: Phía trước bố trí phòng ngủ của vợ chồng với nhà vệ sinh riêng và tắm đứng theo yêu cầu. Phòng ngủ của bà cũng được bố trí ở tầng 2 thuận tiện trong việc di chuyển. Vị trí cầu thang được xử lý khéo léo đảm bảo diện tích sử dụng của cả 2 phòng đều rộng rãi, thông thoáng như nhau.

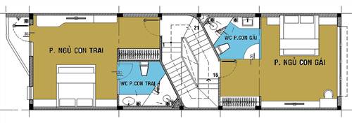
Bố trí mặt bằng tầng 3: Phòng con trai và con gái được bố trí đối diện nhau. Có thể tận dụng thêm diện tích góc do cầu thang tạo nên để làm rộng không gian phòng tắm.

Bố trí mặt bằng sân thượng: Không gian phòng thờ bố trí phía trước. Phía sau là spa gia đình với khoảng sân vườn tạo mảng xanh cho không gian spa trở nên thông thoáng hơn.
Xây Dựng Nắng Xanh chuyên mẫu thiết kế nhà đẹp, xây nhà 3 tầng, xây nhà trọn gói...Quý Khách Hàng có nhu cầu liên hệ chúng tôi để được tư vấn miễn phí.
Tại sao quý khách nên chọn chúng tôi
Nắng Xanh là một đơn vị chuyên hoạt động trong lĩnh vực thiết kế nhà, xây nhà mới, sửa chữa nhà, thi công nội thất. Với hơn 10 năm kinh nghiệm hoạt động trong lĩnh vực xây dựng, Nẵng Xanh sở hữu một đội ngũ kiến trúc sư và đội ngũ thợ lành nghề. Có năng lực chuyên môn cao, Chúng tôi cam kết sẽ mang đến cho quý khách hàng những giá trị thiết thực.

Khách hàng có thể liên hệ với chúng tôi nhanh chóng nhất qua số HOTLINE 0966.502.743 Email hoặc Hộp Chat...

Sau khi nhận được yêu cầu từ khách hàng, chúng tôi sẽ tiến hành khảo sát thực tế công trình...

Sau khi khách hàng đồng ý với báo giá, chúng tôi sẽ tiến hành thi công công trình với quy...

Chúng tôi tiến hành kiểm tra, hoàn thiện dự án & tiến hành bàn giao cho khách hàng