Bài viết dưới đây, sẽ tổng hợp những bản vẽ cad, mẫu thiết kế, hình ảnh mẫu nhà 2 tầng mái thái đẹp nhất với kiến trúc và phong cách đa dạng từ các mẫu nhà 2 tầng mái thái đẹp 2021 đơn giản, hiện đại, có tum, có gác lửng hay mẫu nhà vuông 2 tầng mái thái, nhà ống mái thái 2 tầng 500 triệu, 600 triệu, 700 triệu,..đẹp nhất vừa tiết kiệm chi phí vừa thu hút được mọi ánh nhìn.
Hình ảnh nhà 2 tầng mái thái 3 phòng ngủ đẹp với gam màu trắng sang trọng được xây dựng tại Thái Nguyên, được thiết kế theo kiểu tân cổ điển đây là sự kết hợp giữa kiến trúc đơn giản mang nét đặc trưng và cổ điển trong thiết kế.

Mẫu thiết kế nhà mái thái 2 tầng 3 phòng ngủ với gam màu trắng sang trọng
Những đường cong vô cùng mềm mại, hoa văn trang trí đơn giản mà vẫn tinh tế, tuy nhẹ nhàng nhưng ghi dấu ấn cho người nhìn. Nhà mái thái còn ấn tượng với đường nét mềm mại uyển chuyển. Không gian nhà mái thái 2 tầng đẹp nhất này được bao quanh bởi hệ sân vườn đẹp mắt tạo không gian sống thiên nhiên, tạo sự thoải mái và thư giãn nhất.

Mặt bằng tổng thể nhà mái thái 2 tầng 3 phòng ngủ với gam màu trắng
Mặt bằng tầng 1 gồm: phòng khách, phòng bếp ăn, 1 phòng ngủ, 1 WC, 1 gara. Phòng khách không gian rộng lớn thể hiện sự đẳng cấp và bế thế cho gia chủ. Phòng bếp ăn được bố trí liền kề thuận tiện và tăng diện tích cho người sử dụng. Phòng ngủ phía sau thể hiện sự kín đáo.
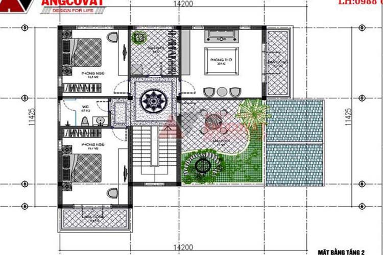
Mặt bằng tầng 2 gồm: phòng thờ, 2 phòng ngủ, phòng tập, sân chơi, 1 WC. Phòng thờ được thiết kế không gian rộng thể hiện ý nghĩa tâm linh.

Bản thiết kế mặt bằng tầng 1 nhà mái thái 2 tầng 3 phòng ngủ với gam màu trắng

Bản thiết kế mặt bằng tầng 2 nhà mái thái 2 tầng 3 phòng ngủ với gam màu trắng
Mẫu nhà 2 tầng mái thái đẹp hiện đại dưới đây khoác lên mình vẻ ngoài sang trọng và hiện đại. Với những đường nét tinh tế cách tân mới lạ được thiết kế tại Tuyên Quang cùng phong cách kiểu tân hiện đại kết hợp thêm vài nét truyền thống mang đến sự hài hòa và trang nhã.

Mẫu thiết kế nhà mái thái 2 tầng 4 phòng ngủ
Đây là kiểu nhà mái thái 2 tầng đẹp phù hợp với văn hóa địa phương, vùng miền. Ngoại thất mẫu thiết kế nhà mái thái 2 tầng 4 phòng ngủ có diện tích 150m2 đẹp mắt, nét trầm mặc thể hiện cách phối hợp màu sắc và ngoại thất hợp lý.

Mặt bằng tổng thể nhà mái thái 2 tầng 4 phòng ngủ

Bản thiết kế mặt bằng tầng 1 nhà mái thái 2 tầng 4 phòng ngủ

Bản thiết kế mặt bằng tầng 2 nhà mái thái 2 tầng 4 phòng ngủ
Nhờ kiến trúc hình vuông mà ngôi nhà 2 tầng mái thái này trở nên sang trọng hơn. Đặc biệt các khối đua ban công mang đến cho ngôi nhà sự bề thế và lạ mắt hơn rất nhiều.

Mẫu thiết kế nhà vuông 2 tầng mái thái 4 phòng ngủ
Mẫu nhà ống mái thái 2 tầng sang trọng mang tính thẩm mỹ cao cho ngôi nhà, thể hiện được cá tính của gia chủ, mẫu thiết kế với 2 tầng sử dụng chính và một tầng lửng. Thiết kế mang phong cách tân cổ điển với mái dốc duyên dáng cùng khoảng tầng lửng thiết kế vách kính to rộng lấy sáng đẹp mắt.
Vì vậy, như mẫu dưới chọn sơn màu gạch sẽ rất phù hợp với những gia đình yêu thích phong cách trẻ trung và hiện đại. Ngôi nhà ống mái thái 2 tầng được xây dựng với tổng diện tích sàn khoảng 136m2.

Mẫu nhà ống mái thái 2 tầng sang trọng, phong cách tân cổ điển
Nhìn vào mẫu nhà chắc hẳn các bạn đã bị cuốn hút bởi tổng thể hoàn hòa của ngôi nhà, các gam màu được kết hợp hài hòa với nay, màu trắng - đen - đỏ đã tạo nên một diện mạo đặc sắc cho ngôi nhà mái thái 2 tầng có gác lửng này.

Mẫu nhà 2 tầng mái thái có gác lửng cuốn hút người nhìn
Ngôi nhà được thiết kế theo lối kiến trúc tân cổ điển sang trọng cùng vẻ đẹp tinh tế trang nhã, cuốn hút từ cái nhìn đầu tiên. Những chi tiết phào chỉ trang trí đơn giản nhưng vô cùng nổi bật, hệ thống lan can sắt sơn đen hoa văn uốn lượn càng thêm sang trọng.

Phối cảnh mẫu nhà đẹp 2 tầng mái thái 8x12m tại Hưng Yên
Đặc biệt, ngôi nhà sử dụng tone màu ngoại thất trắng tinh khôi tạo cảm giác cảm giác an toàn mà còn mang đến một không gian rộng mở được kết nối với thiên nhiên bên ngoài.

Mặt bằng tầng 1 mẫu nhà đẹp 2 tầng mái thái 8x12m tại Hưng Yên

Mặt bằng tầng 2 mẫu nhà đẹp 2 tầng mái thái 8x12m tại Hưng Yên
Mẫu thiết kế nhà 2 tầng mái thái đơn giản này không quá cầu kỳ cùng chi tiết rườm rà bởi những đường nét ngoại thất rất đơn giản, nhẹ nhàng nhưng vẫn có đôi nét mạnh mẽ và dứt khoát đã tạo nên vẻ hài hòa với nhau. Ngoại thất căn nhà mang vẻ trầm ấm và lịch lãm. Căn nhà sử dụng tone màu trầm tối để toát lên vẻ ngoài cá tính và thời thượng.

Mẫu nhà 2 tầng mái thái đơn giản được ưa chuộng
Chiêm ngưỡng nhà 2 tầng mái ngói nông thôn được thiết kế những khối vuông vắn của thân tường, ô cửa được thiết kế tạo cảm giác chắc chắn và bền vững. Màu sắc ngôi nhà có sự hài và bắt mắt.

Mẫu nhà 2 tầng mái thái nông thôn đơn giản
Xem mẫu nhà 2 tầng mái thái mang kiến trúc hiện đại này bạn sẽ bị cuốn hút bởi kiểu thiết kế sân vườn xanh tươi, đẹp mắt cùng mái thái tạo nét đẹp tinh tế, không gian thoáng mát. Mái thái kết hợp mái giả gỗ rất độc đáo và bắt mắt.

Mẫu nhà 2 tầng mái thái đơn giản kiểu hiện đại
Xây nhà ống 2 tầng mái thái đẹp, hiện đại luôn là sự lựa chọn hàng đầu của nhiều gia đình Việt hiện nay. Bởi những ưu điểm nổi bật từ các kiểu nhà ống 2 tầng mái thái đem lại, cùng thiết kế đơn giản mà không quá cầu kỳ nhưng lại đem đến sự cuốn hút đặc biệt cho mặt tiền, không gian sống rộng rãi thoáng mát.
Mẫu mặt tiền nhà ống 2 tầng mái thái gây ấn tượng bởi 3 mái thái dốc và nhọn, họa tiết trang trí sắc sảo tạo cuốn hút trong mọi ánh nhìn. Với lan can ban công bằng sắt tạo sự an toàn cho gia chủ, không gian thoải mái. Tận dụng không gian ngoài để trồng cây xanh tăng tính thẩm mỹ cho ngôi nhà.

Mẫu thiết kế mặt tiền nhà ống 2 tầng mái thái cực ấn tượng
Mẫu nhà phố 2 tầng mái thái này sẽ phù hợp với nhiều gia đình Việt, đặc biệt thích hợp cho những gia đình có nhiều thế hệ cùng chung số với 4 phòng ngủ rộng rãi, không gian mỗi phòng rộng rãi đáp ứng đủ nhu cầu cần thiết của mọi gia đình hiện nay.
Mẫu nhà ống 2 tầng mái thái mặt tiền 5m sử dụng màu sắc hài hòa với gam màu trắng làm chủ đạo kết hợp ốp đá ghi xám tầng một khá bắt mắt, tạo nên một tổng thể hoàn hảo và cuốn hút người nhìn.

Mẫu nhà ống mái thái 2 tầng sang trọng, hiện đại
Để nắm bắt được xu hướng về xây dựng nhà ở hiện nay, không thể bỏ qua những mẫu nhà 2 tầng mái thái nông thôn kiểu nhà vườn đẹp mắt với nhiều kiểu dáng hiện đại, phong cách thẩm mỹ độc đáo.
Chính vì vậy, xu hướng xây dựng các mẫu nhà 2 tầng mái thái ở nông thôn kiểu nhà vườn ngày càng được nhiều người lựa chọn bởi các kiến trúc sáng tạo thêm những chi tiết giúp tăng tính thẩm mỹ cao đáp ứng được thị hiếu của mọi người. Kiểu dáng đơn giản, phối hợp màu sắc hợp lý, không cầu kì chi tiết thì chi phí cũng vừa phải đó cũng chính là điểm thu hút nhất trong mẫu nhà này.
Mẫu nhà mái thái 2 tầng ở quê kiểu nhà vườn, sử dụng mái ngói hiện đại với cột bê tông đơn giản mái thái, cùng không gian rộng rãi có cầu thang phía ngoài mang đến một nét khác biệt ở nông thôn.

Mẫu nhà 2 tầng mái thái nông thôn theo kiểu nhà vườn
Mẫu thiết kế sử dụng gam màu trắng làm chủ đạo kết hợp với gam màu xanh nước biển tạo nên sự cuốn hút cho người nhìn, xung quanh là cây xanh rất mát mẻ mang lại không gian thoáng đãng. Mẫu này được kiến trúc sư tính toán từng góc diện phù hợp với yêu cầu sử dụng, có vườn trồng rau, cây xanh tạo không gian xanh trong ngôi nhà thêm đẹp.
Với mẫu nhà vườn 2 tầng mái thái đẹp ở nông thôn này được kiến trúc sư thiết kế theo kiểu tân cổ điển cuốn hút từ chi tiết chỉ phào, mang vẻ đẹp hoàn hảo tạo nên không gian hoành tráng và sang trọng. Mỗi nét kiến trúc đều rất hài hòa, đồ sộ đúng chất của phong cách kiến trúc Châu Âu.

Mẫu nhà 2 tầng mái thái nông thôn theo kiểu tân cổ điển
Khuôn viên được thiết kế một cách hợp lý và khoa học nhất nhằm đưa thiên nhiên vào không gian sống, không những làm đẹp ngôi nhà mà còn mang đến sự trong lành và tươi mát giúp cho gia chủ có cảm giác thoải mái. Với màu sơn nâu và ghi đem lại nét đẹp đặc sắc.
Mẫu nhà 2 tầng 1 tum mái thái đẹp này được xây dựng trên lô đất 209m2, được kiến trúc sư thiết kế theo phong cách nghệ thuật kiến trúc đậm nét Á Đông. Mẫu nhà này đã chứng minh được sự tinh tế, hài hòa trong từng chi tiết, tạo nên một tổng thể hoàn hảo cùng một không gian vẻ đẹp lãng mạn, tinh khôi và chân thủy.

Phối cảnh 3D mẫu nhà 2 tầng 1 tum mái thái tại Lâm Đồng
Các loại vật liệu trang trí độc đáo, mang tính thẩm mỹ cao kết hợp những hình khối học cơ sở khiến ngôi nhà trở nên uyển chuyển và nhẹ nhàng hơn, đúng kiểu mẫu nhà mơ ước của nhiều hộ gia đình.

Mặt bằng tổng thể mẫu nhà 2 tầng 1 tum mái thái tại Lâm Đồng

Mặt bằng tầng 1 mẫu nhà 2 tầng 1 tum mái thái tại Lâm Đồng

Mặt bằng tầng 2 mẫu nhà 2 tầng 1 tum mái thái tại Lâm Đồng

Mặt bằng tầng tum mẫu nhà 2 tầng 1 tum mái thái tại Lâm Đồng
Mẫu nhà ống 2 tầng 1 tum mái thái thuộc về gia đình ông Tám ở Nam Định được xây dựng trên mảnh đất có chiều rộng 6m và chiều sâu 14m. Ngôi nhà được thiết kế theo phong cách tân cổ điển mái thái với những hình khối cân đối vuông vắn tạo nên cảm giác chắc chắn và bền vững, mang đến vẻ đẹp cuốn hút người nhìn.

Phối cảnh mẫu nhà 2 tầng 1 tum mái thái hiện đại

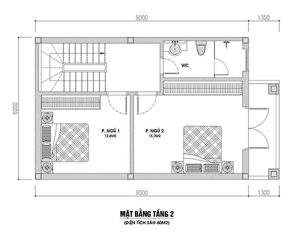
Mặt bằng tầng 1 mẫu nhà 2 tầng 1 tum mái thái hiện đại

Mặt bằng tầng 2 mẫu nhà 2 tầng 1 tum mái thái hiện đại

Mặt bằng tầng tum mẫu nhà 2 tầng 1 tum mái thái hiện đại
Nhà 2 tầng mái thái khoảng 500 triệu được rất nhiều người tìm hiểu và quan tâm, phù hợp với những đôi vợ chồng trẻ mới cưới có nhu cầu ở riêng hoặc những có thu nhập thấp. Với số tiền 500 triệu đã có thể sở hữu được một ngôi nhà 2 tầng mái thái đẹp nhất và hiện đại riêng cho mình.
Bất kỳ gia đình nào, có diện tích khu đất rộng hay hẹp đều có thể xây dựng cho mình mẫu nhà 2 tầng mái thái giá 500 triệu này. Những ngôi nhà mái thái 2 tầng không chỉ mang đến một không gian sống tiện nghi mà còn mang đến một không gian thoáng đã, mát mẻ,…chính vì vậy việc lựa chọn cho mình một kiểu mẫu nhà 2 tầng mái thái là cần thiết.
Nhà 2 tầng mái thái được xây dựng trên tổng diện tích đất 40m2 cũng hút người nhìn bằng những nét thiết kế đơn giản nhưng vô cùng tinh tế. Chỉ với chi phí khoảng 500 triệu đồng đã có thể sở hữu một không gian sống tiện nghi, thoáng đã, mát mẻ.

Nhà 2 tầng mái thái diện tích 40m2 với chi phí 500 triệu
Nhà 2 tầng mái thái xây dựng trên tổng diện tích đất 4.5x9m, được thiết kế theo phong cách hiện đại với chi phí xây dựng 500 triệu đồng vô cùng bắt mắt và cuốn hút người nhìn bởi tông màu trắng sáng tinh khôi cùng hệ thống cửa kính cường lực chống ồn, đúng kiểu mẫu nhà đáng sở hữu hiện nay.

Nhà 2 tầng mái thái diện tích đất 4.5x9m với chi phí giá rẻ 500 triệu
Mẫu nhà 2 tầng mái thái 700 triệu này với vẻ bề ngoài nhẹ nhàng thanh lịch không kém phần hiện đại mang tính thẩm mỹ cao. Thiết kế ngoại thất nổi bật từ vẻ ngoài cho tới bên trong, ít phô trương nhưng lại mang nhiều điểm nhấn tạo chiều sâu khiến người nhìn bị cuốn hút.

Mẫu nhà 2 tầng mái thái với mặt tiền 8m
Với màu sắc trầm lạnh đẹp mắt. Màu xám được sử dụng cho hệ mái và đá ốp, màu ghi xám kết hợp hài hòa cùng sắc trắng sử dụng cho tường nhà còn màu nâu cho bê tông trang trí đã tạo nên một tổng thể hoàn hảo, chuyên nghiệp và đặc biệt.
Với nhà 2 tầng mái thái 600 triệu này người nhìn sẽ ưng ý ngay bởi cái nhìn đầu tiên, có thể thấy được sự trau chuốt trong thiết kế của kiến trúc sư tài năng qua cách phối hợp màu sắc cho đến các chi tiết bắt mắt và cuốn hút người nhìn.

Mẫu thiết kế nhà vuông 2 tầng mái thái đẹp 700 triệu
Mẫu nhà này có gam màu trắng đen là sự kết hợp cực kỳ ăn ý, làm cho căn nhà thêm sang trọng, kết hợp cửa kính nhôm hiện đại mang ánh sáng tự nhiên vào nhà, tạo không gian sinh hoạt thông thoáng và thư giãn.
Đây là mẫu nhà mái thái 2 tầng đẹp 2020 tại Thanh Hóa được nhiều người ưa chuộng bởi thiết kế hiện đại và rất nổi bật bởi không gian vườn xung quanh xanh mát. Phía trước hoặc sau nhà đều có thể trồng cây tạo không gian thoáng đãng, thích hợp cho gia đình nghỉ ngơi sau ngày dài làm việc mệt mỏi.

Mẫu thiết kế mái thái 2 tầng 3 phòng ngủ tại Thanh Hóa
Mẫu thiết kế này có kiến trúc ngoại thất rất độc đáo, vững vàng và chắc khỏe cho ngôi nhà. Toàn bộ kiến trúc nhà mái thái 2 tầng đẹp quanh nhà được thiết kế lam chắn mưa nắng bằng sắt hộp sơn màu giả gỗ sáng tạo và thẩm mỹ cao, mang đến ấn tượng và bắt mắt người nhìn.
Mặt bằng tầng 1 bao gồm: Gara ô tô, 1 phòng khách lớn . phòng bếp, phòng ăn, bể bơi , phòng ngủ, phòng vệ sinh , và phòng chứa đồ.
Mặt bằng tầng 2 bao gồm: 1 phòng sinh hoạt chung, 3 phòng ngủ, 1 phòng làm việc.

Bản thiết kế mặt bằng tầng 1 mái thái 2 tầng 3 phòng ngủ tại Thanh Hóa

Bản thiết kế mặt bằng mái thái 2 tầng 3 phòng ngủ tại Thanh Hóa
Nhà 2 tầng mái thái 100m2 được thiết kế theo phong cách hiện đại, sang trọng đón đầu mọi xu hướng. Mẫu thiết kế này khá đẹp mắt bởi sự kết hợp hài hòa từ không gian bên ngoài cho tới không gian sinh sống bên trong.

Mẫu nhà 2 tầng mái thái 100m2 đẹp, sang trọng
Với diện tích 100m2 chúng ta đã có thể dễ dàng tạo ra nhiều phòng chức năng gồm: 4 phòng ngủ, phòng khách, phòng bếp, 4 phòng vệ sinh, sân trước, gara để xe rộng rãi, sân phơi và phòng thờ riêng yên tĩnh. Đây chính là một trong những mẫu nhà được ưa chuộng hiện nay.

Mặt bằng tầng 1 mẫu nhà 2 tầng mái thái 100m2 đẹp, sang trọng

Mặt bằng tầng 2 mẫu nhà 2 tầng mái thái 100m2 đẹp, sang trọng
Nhìn vào phối cảnh của mẫu nhà ống 2 tầng mái thái 5x20m dưới đây chắc chắn bạn sẽ bị cuốn hút bởi kiến trúc hài hòa kết nối thành một mặt tiền sang trọng, đẹp mắt với những tone màu trắng - gỗ - nâu pha trộn lẫn nhau mang đến một vẻ đẹp thẩm mỹ.

Mẫu nhà phố 2 tầng mái thái 5x20m tại Đồng Nai
Mẫu nhà 2 tầng mái thái 8x12m được thiết kế theo phong cách tân cổ điểm tại Hòa Bình, ngôi nhà mang một vẻ đẹp độc đáo và cuốn hút.
Màu sắc sử dụng tươi sáng tại nên sự trang nhã và thoáng đãng hơn cùng hệ thống cửa kính khung gỗ sang trọng giúp lấy sáng, đón gió mát thuận tiện. Đúng là mẫu nhà đáng sở hữu hiện nay.

Mẫu nhà 2 tầng mái thái 8x12 tại Hòa Bình

Mặt bằng tầng 1 mẫu nhà 2 tầng mái thái 8x12

Mặt bằng tầng 2 mẫu nhà 2 tầng mái thái 8x12
Ai trong chúng ta trong đời cũng phải có lần lựa chọn mẫu nhà để xây dựng mái ấm hạnh phúc gia đình. Trên đây là các mẫu thiết kế nhà 2 tầng mái thái đẹp được yêu thích bởi kiểu dáng đơn giản, sang trọng hiện đại mà chi phí xây dựng phù hợp túi tiền của gia chủ. Còn rất nhiều mẫu nhà với các thiết kế hợp xu hướng được cập nhật trên .
Chi phí xây nhà 2 tầng mái thái hiện nay được nhiều người quan tâm và thắc mắc, các gia chủ đang có ý định cải tạo lại hay xây kiểu nhà 2 tầng mái thái đẹp, giá rẻ mới cho tổ ấm hạnh phúc gia đình của mình thì cách tính toán chi phí làm nhà 2 tầng mái thái là một điều cần thiết.
Vậy làm sao để xây dựng một căn nhà khang trang, đẹp mắt với 2 tầng đầy đủ tiện ích với chi phí vừa phải và tiết kiệm nhất. Bạn có thể cùng tham khảo cách tính M2 xây dựng dưới đây để biết được chi phí mẫu nhà 2 tầng mái thái 2018 cho mình.
Cách tính giá là: Diện tích tầng sử dụng phần mái BTCT 30%/diện tích móng băng 30% diện tích.
Thường giá xây nhà trọn gói khoảng 4.5tr/m2 và giá xây nhà phần thô khoảng 2.8-3tr/m2.
Ví dụ cụ thể dự toán chi phí xây dựng mẫu nhà 2 tầng mái thái giá rẻ 80m2 theo diện tích ta có:
- Diện tích nhà 2 tầng 80m2:
=> Tổng: 240m2
- Đơn giá thi công:
- Dự toán chi phí xây dựng phần thô: 240 x 3.000.000 = 720.000.000 vnđ
- Dự toán chi phí xây dựng trọn gói: 240 x 5.000.000 = 1.200.000.000 vnđ
Xây Dựng Nắng Xanh chuyên thiết kế nhà đẹp, xây nhà trọn gói, sửa nhà trọn gói...Quý Khách Hàng có nhu cầu liên hệ chúng tôi để được tư vấn miễn phí.
Tại sao quý khách nên chọn chúng tôi
Nắng Xanh là một đơn vị chuyên hoạt động trong lĩnh vực thiết kế nhà, xây nhà mới, sửa chữa nhà, thi công nội thất. Với hơn 10 năm kinh nghiệm hoạt động trong lĩnh vực xây dựng, Nẵng Xanh sở hữu một đội ngũ kiến trúc sư và đội ngũ thợ lành nghề. Có năng lực chuyên môn cao, Chúng tôi cam kết sẽ mang đến cho quý khách hàng những giá trị thiết thực.

Khách hàng có thể liên hệ với chúng tôi nhanh chóng nhất qua số HOTLINE 0966.502.743 Email hoặc Hộp Chat...

Sau khi nhận được yêu cầu từ khách hàng, chúng tôi sẽ tiến hành khảo sát thực tế công trình...

Sau khi khách hàng đồng ý với báo giá, chúng tôi sẽ tiến hành thi công công trình với quy...

Chúng tôi tiến hành kiểm tra, hoàn thiện dự án & tiến hành bàn giao cho khách hàng