Mẫu thiết kế nhà 4 tầng theo phối cảnh 3D

Phòng ăn trong bếp.

Nhà vệ sinh tận dụng gầm cầu thang ở tầng một.

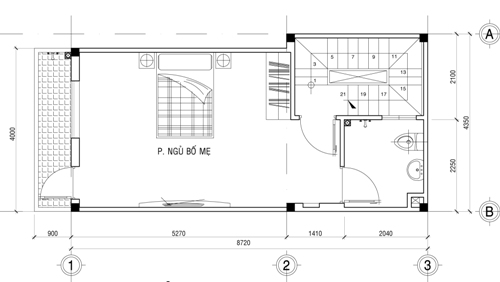
Nhà vệ sinh phòng ngủ vợ chồng.

Phòng ngủ vợ chồng tràn ngập ánh sáng khi kéo rèm cửa.

Ánh sáng bình minh tràn ngập trong phòng ngủ của bé.

Thác nước mini trên sân thượng.

Sân thượng làm sân vườn thư giãn.

Khéo léo sử dụng đèn chiếu sáng cho sân thượng lung linh khi trời tối.
Nhà tôi nằm mặt tiền sầm uất ở quận 3, TP HCM. Tôi kinh doanh tại nhà, chồng là công chức, còn con bắt đầu vào lớp 6. Hiện nay tôi chỉ có kinh phí hạn hẹp 730 triệu đồng, nhờ kiến trúc sư tư vấn phương án xây nhà kích thước 8,7x4 m, nở hậu 4,35 m, quy mô 4 tầng, diện tích sử dụng 175 m2.
Mong muốn của gia đình tôi là không gian thoáng đãng, tiện nghi, thân thiện môi trường, tận dụng tối đa diện tích sử dụng. Tầng một dùng để kinh doanh và có thêm nhà vệ sinh. Tầng 2 gồm phòng ăn và bếp, phòng sinh hoạt gia đình. Tầng 3 là phòng ngủ vợ chồng, có nhà vệ sinh bên trong. Tầng 4 gồm phòng ngủ cho con, sân phơi, phòng thờ, sân vườn là nơi tiếp khách.
Trả lời:
Với diện tích như trên, tôi có một số gợi ý bố trí các hạng mục cho nhà chị nhằm tối đa diện tích sử dụng như sau:

Tầng một dùng để buôn bán, bố trí thêm nhà vệ sinh.

Tầng 2 gồm phòng ăn và bếp.

Tầng 3 là phòng ngủ cho vợ chồng.

Tầng 4 gồm phòng ngủ cho con, gian thờ, sân phơi, sân vườn.

Tầng mái là nơi đặt bồn nước và hệ thống máy năng lượng mặt trời.
Xây Dựng Nắng Xanh chuyên thiết kế nhà, xây nhà trọn gói, sửa nhà...Quý Khách Hàng có nhu cầu liên hệ chúng tôi để được tư vấn miễn phí.
Tại sao quý khách nên chọn chúng tôi
Nắng Xanh là một đơn vị chuyên hoạt động trong lĩnh vực thiết kế nhà, xây nhà mới, sửa chữa nhà, thi công nội thất. Với hơn 10 năm kinh nghiệm hoạt động trong lĩnh vực xây dựng, Nẵng Xanh sở hữu một đội ngũ kiến trúc sư và đội ngũ thợ lành nghề. Có năng lực chuyên môn cao, Chúng tôi cam kết sẽ mang đến cho quý khách hàng những giá trị thiết thực.

Khách hàng có thể liên hệ với chúng tôi nhanh chóng nhất qua số HOTLINE 0966.502.743 Email hoặc Hộp Chat...

Sau khi nhận được yêu cầu từ khách hàng, chúng tôi sẽ tiến hành khảo sát thực tế công trình...

Sau khi khách hàng đồng ý với báo giá, chúng tôi sẽ tiến hành thi công công trình với quy...

Chúng tôi tiến hành kiểm tra, hoàn thiện dự án & tiến hành bàn giao cho khách hàng